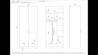
Закрыли новый заказ | Конструктив корпусной мебели в программе Базис мебельщик

 

Для заказа конструктива корпусной и встроенной мебели пишите в телеграмм, ссылка тоже в описании. Канал портфолио t.me/vizual_meb